Technische Daten
| Modell/Maße |
|
HB
12 |
HB
12/16 |
HB
16 |
HB
20 |
HB
22 |
| Nenndurchlaß |
mm |
1250 |
1250 |
1600 |
2000 |
2400 |
| Rollendruchmesser |
mm |
1250 |
1600 |
1600 |
1800 |
2200 |
| Normale Abmessungen des Sägeblattes |
mm |
150x1,2
x8300 |
200x1,47
x9650 |
200x1,47
x10800 |
260x1,65
x12200 |
310x1,83
x14900 |
| Antriebsleistung Hauptmotor |
kW |
30-40 |
40-60 |
40-60 |
50-80 |
80-120 |
| Antriebsleistung Vorschub |
kW |
5,5 |
5,5 |
5,5 |
7,5 |
7,5 |
| Vorschubgeschwindigkeit (bei mech. Vorschub) |
m/min |
0,4-40 |
0,4-40 |
0,3-32 |
0,3-32 |
0,3-32 |
| Rücklaufgeschschwindigkeit (bei
mech. Vorschub) |
m/min |
60 |
60 |
48 |
48 |
48 |
| Wagenlänge |
m |
6, 8, 10, 12 |
6, 8, 10, 12 |
6, 8, 10, 12 |
6, 8, 10, 12 |
6, 8, 10, 12 |
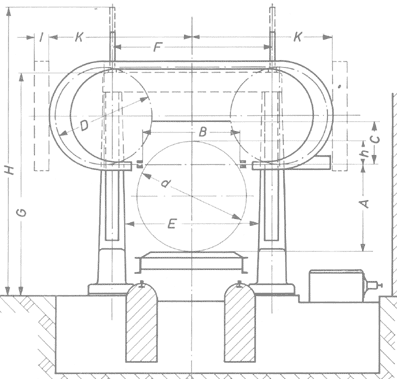
 |
Modell
mm |
HB
12 |
HB
12/16 |
HB
16 |
HB
20 |
HB
22 |
| A |
1250 |
980 |
1600 |
2000 |
2200 |
| B |
1270 |
1250 |
1700 |
2050 |
2400 |
| C |
550 |
725 |
725 |
820 |
1100 |
| D |
1250 |
1600 |
1600 |
1800 |
2200 |
| E |
1730 |
1730 |
2350 |
2350 |
2750 |
| F |
2050 |
2050 |
2700 |
2700 |
3200 |
| G |
3040 |
3040 |
3690 |
4210 |
4780 |
| H |
4320 |
4050 |
5320 |
6240 |
7010 |
| I |
180 |
240 |
240 |
290 |
340 |
| K |
1830 |
2075 |
2380 |
2680 |
3200 |
d |
1520 |
1350 |
2010 |
2350 |
2750 |
| h |
270 |
370 |
410 |
350 |
550 |

| Modell
mm |
HB
12 |
HB
12/16 |
HB
16 |
HB
20 |
HB
22 |
L |
1560 |
1560 |
2230 |
2260 |
2260 |
| M |
850 |
850 |
1150 |
1150 |
1150 |
N |
450 |
450 |
450 |
450 |
450 |
| O |
1150 |
1150 |
1300 |
1300 |
1400 |
P |
1000 |
1000 |
1000 |
1000 |
1100 |
| R |
1750 |
1750 |
2250 |
2250 |
2500 |
S |
2400 |
2400 |
2700 |
2700 |
2950 |
| T |
2550 |
2550 |
2850 |
3000 |
3550 |
U |
1800 |
1800 |
2350 |
2650 |
3200 |
| V |
1200 |
1200 |
1350 |
1350 |
1400 |
|